elisa hartmann

Pikto

Weinschule im Burgenland

West Hof Bibliothek -1 0 0 1 Schnitt Foyer

Vine school in Lutzmannsburg

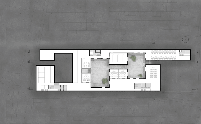
The existing structure in Lutzmannburg is characterized by a very straight grid which consists of a long building and a cross standing barn at the end. This structure was the basis to create two volumes facing each other and communicating through interlocking.
Different functions require different volumes. The school, standing at the corner, is aligned with the churchs eaves. Stepping down the volumes integrates the building into the surrounding. The Vine production and the shop is adjacent to the neighbouring house and oriented to its eave. The back part contains delivery and administration. It provides the connection to the urban environment.
Crucial are the three ways through the structure which become wide and narrow repeatedly. The courtyards do all have the same width. Through shifting them, decent corridors are created. The dislocation arouse curiosity about the next yard. What is more, the courtyards are allocated to specific buildings but are also connected to one big yard.
The widening and narrowing of the yards is also reflected in the corridors inside. Where the corridor gets narrow there follows an open view to the courtyards. Squared windows offer sitting opportunities and allow views through the building. The staircases structure the corridors additionally as they are shifted similarly to the yards.

Ein Projekt von Jenny Wensien und Elisa Hartmann