elisa hartmann

Pikto

Komm' zur Ruhe

Raum des Gesprächs Obergeschoss Erdgeschoss Bibliothek Schnitt a-a Schnitt c-c Schnitt b-b Meditationsraum Schnitt d-d Schnitt e-e Modell

Komm' zur Ruhe

Ein ehemaliges NS-Ausbildungslager mitten in der Eifel, wie geht man damit um?

Die NS-Ordensburg Vogelsang wurde durch Nazis als Ausbildungslager von Zwangsarbeitern errichtet und befindet sich inmitten des Eifel Nationalparks. Nach dem Zweiten Weltkrieg wurde sie zum belgischen und britischen Truppenübungsplatz. Heute wird die Ordensburg als internationales Bildungs- und Ausstellungszentrum genutzt.

Konzept

Idee: Klosterähnliche Anlage als Ort der Besinnung für alle Religionen und Atheisten

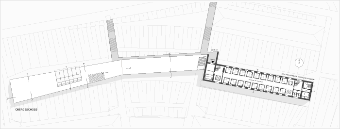
Umbau eines Kameradschaftshauses zu individuellen Einzelkojen

Konzept: Klarer Kontrast zur Naziarchitektur, auch die Kojen zeigen Distanz zum Bestand
Die Idee gründet darauf, die Stille des Ortes zu nutzen und sich dort in einer klosterähnlichen Anlage als Ort der Besinnung für Menschen aller Religionen und Atheisten, zurückziehen zu können. Der Neubau knüpft an ein bestehendes Kameradschaftshaus an, welches im Innenraum individuelle Einzelkojen bekommt. In den Kameradschaftshäusern gab es ursprünglich keine Privatsphäre. 2 Soldaten teilten sich einen Raum von ca. 2,5m x 2,5m. Privatsphäre wird in diesem Konzept großgeschrieben. Jeder Besucher hat seine eigene Koje. Die Kojen selbst symbolisieren eine Distanz zum Bestand, eine Distanz zur Geschichte. Ein klarer Kontrast zur Naziarchitektur wird sowohl thematisch als auch architektonisch geschaffen.

Innenraum und Material

Im Kameradschaftshaus Nr. 8 befindet sich der Empfangsbereich der Anlage. Hier gibt man sein Handy ab und bekommt eine Koje zugeteilt. Jede Koje ist sehr hell durch den Einsatz von Weißtönen und zusätzlichen Oberlichtern. Verlässt man sein kleines Refugium betritt man einen Bereich, der von Ahornsperrholz und warmem Licht dominiert wird. Das Gebäude strahlt durch große Fenster diese Wärme auch nach außen. Verlässt man die privaten Ruheräume macht man sich auf den Weg und gelangt in geselligere Bereiche, den Speisesaal und die Küche. Hier gibt es die Möglichkeit zur Kontaktaufnahme mit Anderen. Der Weg hat besondere Bedeutung, er ist das “Ziel”. Symbolisch steht er für einen Prozess, den man durchlaufen soll. Er regt zum Nachdenken an, ähnlich wie ein Kreuzgang im Kloster. Folgt man ihm, erreicht man das Haus des Gesprächs. Hier kann man mit Seelsorgern oder anderen Besuchern sprechen, zu zweit oder in einer Gruppe. Dieser Raum beinhaltet kleine Gesprächsnischen und eine flexible Sitzgelegenheit in der Mitte des Raumes, die von einem atmosphärischen Rautenmuster in Decke und Wand natürlich und stimmungsvoll beleuchtet wird. Danach geht es in die Bibliothek, die einen Bestand zu den Themen Stressbewältigung, NS-Geschichte und Religionen aufweist. Ein natürliches Gründach dient der Verschattung und sorgt für eine angenehme Atmosphäre. Nur ein paar Schritte weiter, geleitet von einer Kerzenwand, erreicht man den Endpunkt der Strecke, den Meditationsraum. Egal welcher Religion man angehört, egal ob konfessionslos oder Atheist, hier gibt es eine Plattform um gemeinsam oder alleine, zu beten, zu meditieren oder einfach nur den Gedanken freien Lauf zu lassen. Dieser Weg zeigt sich in der Architektur durch ein Ansteigen des Daches nach vorne zum Nationalpark hin. Man öffnet seinen Blickwinkel. Der Neubau steht in einem klaren Kontrast zum restlichen Bestand. Das Konzept der Ruhe spiegelt sich auch in der Form wider. Es war wichtig, einen Eingriff in die Naziarchitektur vorzunehmen. Das inhaltliche Konzept macht deutlich, dass dies nun ein Ort der Toleranz und des Individuums ist, im Gegensatz zur verabscheuungswürdigen Nazi-Ideologie. Der Ort der Ruhe zeigt „leise“, dass er damit nichts zu tun hat.